Leave a Message

Thank you for your message. We will be in touch with you shortly.

Property Description

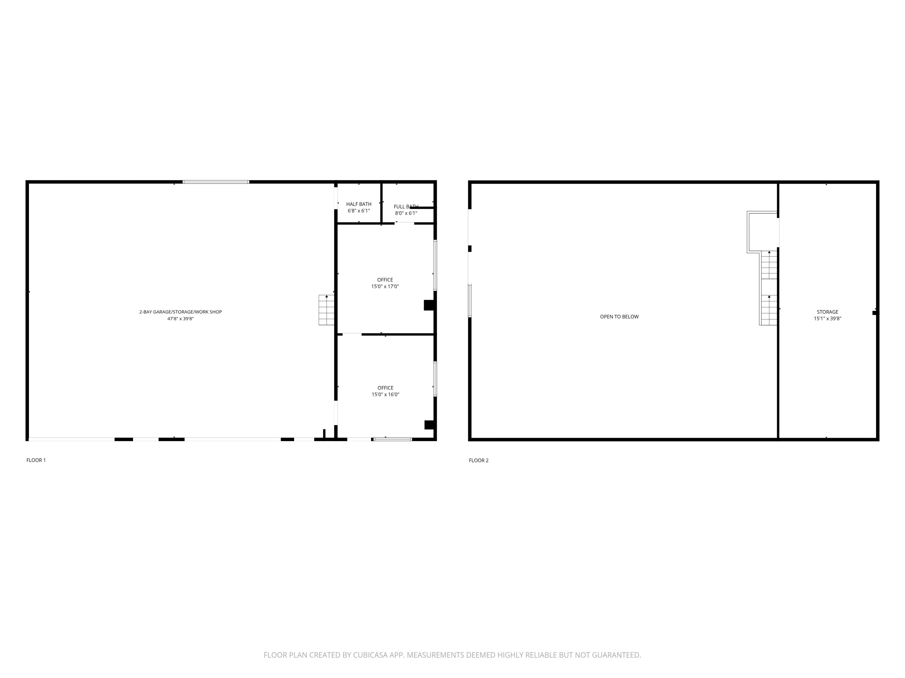
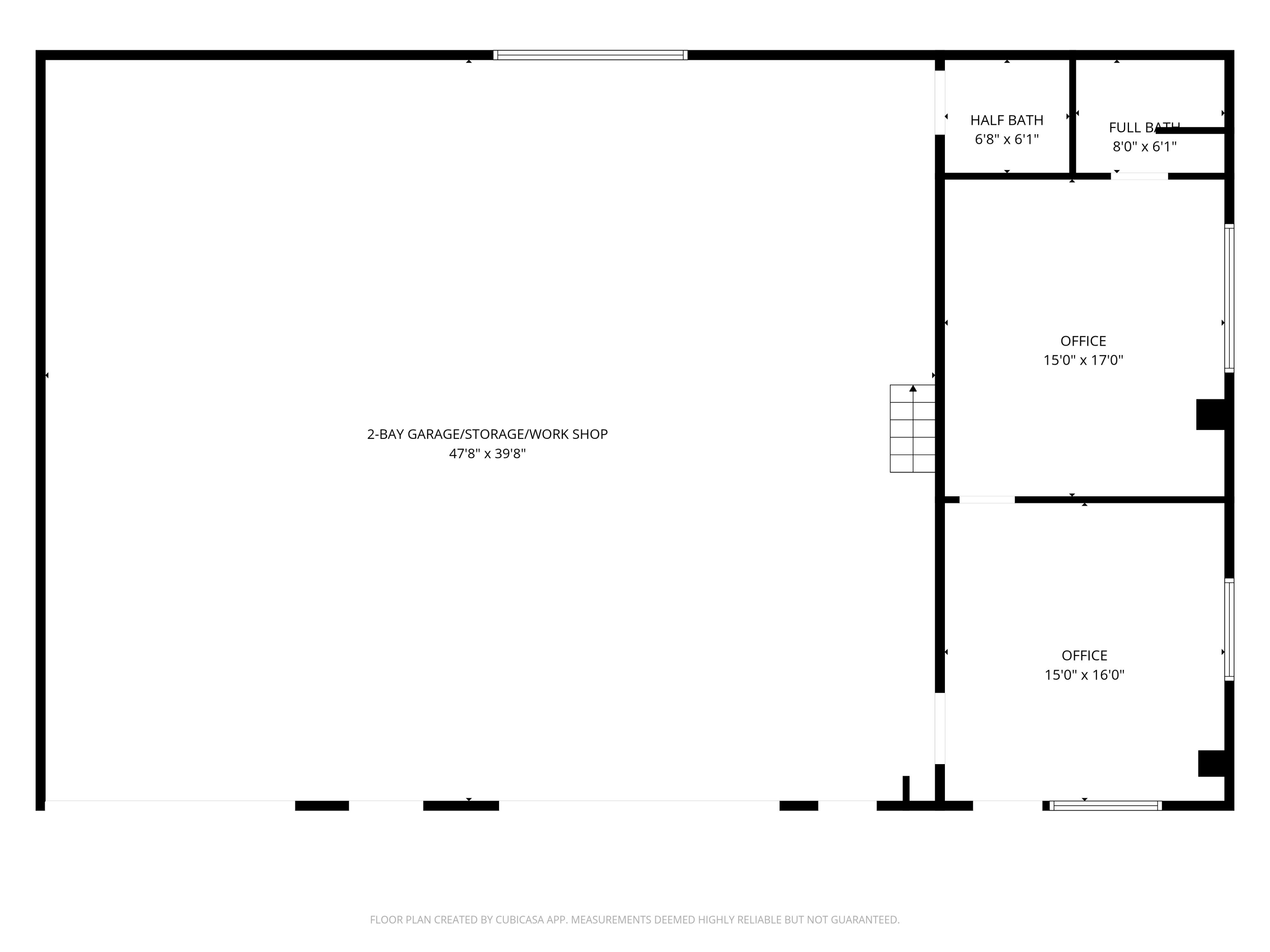
Prime Commercial/Industrial Flex Space~Unlock the potential of this exceptionally maintained commercial property located in a highly accessible area of Orleans. Perfectly situated for businesses requiring robust storage, manufacturing, or service operations, this facility offers a rare combination of industrial capacity and professional office amenities. Versatile and Expansive Workspace~This property is designed for efficiency and scale, currently utilized for secure boat storage--a testament to its substantial size and high ceiling clearance.Dual Service Bays: Benefit from two large service bays (40x60) with high doors (14x14), providing easy ingress/egress for large vehicles, equipment, or extensive inventory.Dedicated Workshop: A separate workshop area offers the perfect environment for production, repair, or dedicated project space.Professional Offices: Transition effortlessly from the shop floor to client meetings with dedicated, comfortable office spaces.Amenities: The building includes 1.5 bathrooms for staff and customer convenience. Washer and dryer available.Superior Storage~Logistics are streamlined with abundant space both inside and out. The property boasts plenty of interior storage capacity, complemented by ample exterior parking. This crucial feature provides maximum flexibility for fleet management, equipment staging, or customer parking, making it a highly valuable asset in the Orleans commercial market.

Whether you're looking to run a successful boat storage, maintenance operation or transition to light manufacturing, wholesale distribution, or specialized services--9 Rayber Road is the ideal foundation for your business growth.

Inquire today to schedule a viewing and explore the possibilities of making this premier Orleans commercial space your new headquarters.

Overview

Property Status
For Sale
Lot Size
0.57 Acres
MLS ID
22505539
Property Type
Commercial
Year Built
1988

Features & Amenities

Total Area
1,920 Sq.Ft.
Stories
1
Utilites
Cable Available, High Speed Internet, Electricity Available, Natural Gas Available
Roof
Metal
Lot Features
In Town Location, Major Highway, Cleared, Level
Heat Type
Other
Air Conditioning
None
Laundry Room
Dryer - Electric, Washer
Appliances
Electric Water Heater, Dryer - Electric, Washer
Sewer
Septic Tank, Private Sewer
Substructure
Concrete Perimeter
Other Exterior Features
Shelving, Storage
School District
Nauset
Sales Price
$1,800,000
Real Estate Tax
$2,689/yr
Zoning
Indust

Downloads

9 Rayber Road

Schedule a Tour

We would love to help you see this beautiful home! As a full-service brokerage, we can help you tour. Please submit an offer, and answer questions about the buying process.

Enter a valid email

Thank you

for your interest in 9 Rayber Road, Orleans, MA 02653

back to page
9 Rayber Road
Navigate

Cape Cod Power of Two

Experience Seamless Buying & Selling

We offer the highest level of expertise, service, and integrity. Get in touch with us to get started today.

Mortgage Calculator

Estimate your monthly mortgage payment, including the principal and interest, property taxes, and HOA. Adjust the values to generate a more accurate rate.
$0,000 Your Payment 20 15 65
$0,000 Your Payment

Cape Cod Power of Two

Experience Seamless Buying & Selling

We offer the highest level of expertise, service, and integrity. Get in touch with us to get started today.

Follow Us On Instagram